SLMHC awards contracts, moving forward with Sioux Lookout’s first MRI

Sioux Lookout Meno Ya Win Health Centre (SLMHC) is excited to announce the awarding of contracts for Sioux Lookout’s first magnetic resonance imaging (MRI) machine. SLMHC has awarded the MRI equipment to GE Healthcare, and the modular pod building for the MRI suite has been awarded to SDI Canada.
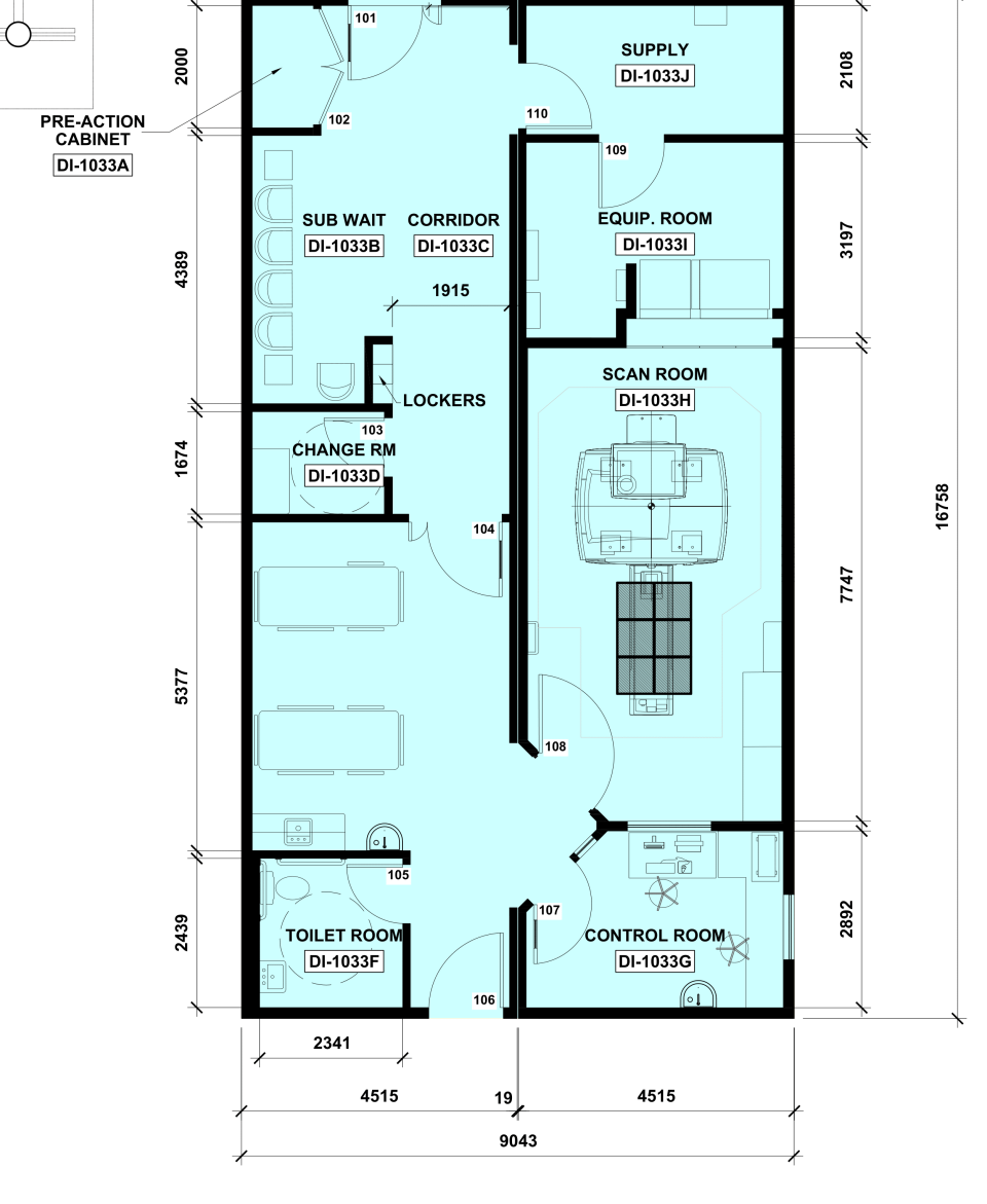
The MRI Suite will be located adjacent to the Ambulatory Care entrance, and it will be seamlessly connected, as an expansion to the hospital, directly to the Diagnostic Imaging Department. The project will utilize a prefabricated modular pod building, that’s approximately 1,650 square feet, to house the MRI machine. SLMHC is excited to begin construction in July, 2025 with a timeline to start the first MRI scans in August, 2026.

The implementation of this state-of-the-art equipment will improve patient care by providing a key diagnostic procedure closer to home, servicing our patient catchment area of over 30,000 people. Currently, patients endure wait times and required travel for MRI scans in both Thunder Bay and Winnipeg.
“This new MRI unit is crucial for ensuring proactive and timely health care services. This needed service helps us to further close health equity gaps for our patients, and it will reduce wait times as patients look to access MRI scans,” says Dean Osmond, SLMHC President and CEO.

“We are pleased to announce that the GE Healthcare SIGNA™ Voyager 1.5T MRI will soon be available at Sioux Lookout Meno Ya Win Health Centre. This advanced system, featuring AIR™ Coils that are designed to provide superior patient comfort through its lightweight and flexible design, ensures easier positioning and faster scan times,” says Arianna Kitching, Manager of Diagnostic Imaging at SLMHC. “The introduction of MRI services locally will significantly enhance health care delivery for our clients by providing timely, high-quality diagnostics closer to home. This milestone marks an important advancement in improving equitable access to essential health-care services in our region.”
Once operational, SLMHC will receive base funding from Ontario Health North West to support the operating hours of the MRI.

© 2026 Sioux Lookout Meno Ya Win Health Centre